服务热线
180-5003-0233

本实用新型涉及午夜免费福利领域,尤其是一种午夜免费福利的主动滚刀机构。
背景技术:
午夜免费福利是一种将薄膜、宽幅纸张、无纺布或云母带分切成多条窄幅卷材的机械设备;午夜免费福利通常采用剃刀分切,剃刀分切是将单面刀片或双面刀片固定在一个固定的刀架上,在卷材运转过程中将刀落下,使刀将卷材纵向切开,以达到分切目的;某些表面有涂层的卷材(如卷材如涂硅保护膜)用剃刀分切时,由于剃刀与被切午夜精品免费视频的接触点保持不变,长时间分切剃刀会发烫,存在被切午夜精品免费视频两边会因为受热而变形,收出的卷材端面会引起翘边,且分切效率较低的不足,因此,设计一种被切午夜精品免费视频两边不会受热变形,收出的卷材端面不会引起翘边,且分切效率较高的午夜免费福利的主动滚刀机构,成为亟待解决的问题。
技术实现要素:
本实用新型的目的是为了克服目前的某些表面有涂层的卷材用剃刀分切时,由于剃刀与被切午夜精品免费视频的接触点保持不变,长时间分切剃刀会发烫,存在被切午夜精品免费视频两边会因为受热而变形,收出的卷材端面会引起翘边,且分切效率较低的不足,提供一种被切午夜精品免费视频两边不会受热变形,收出的卷材端面不会引起翘边,且分切效率较高的午夜免费福利的主动滚刀机构。
本实用新型的具体技术方案是:
一种午夜免费福利的主动滚刀机构,包括:驱动侧墙板,非驱动侧墙板,撑杆,装于驱动侧墙板中且与撑杆一端滑动连接的套管,非驱动侧墙板设有的与撑杆另一端滑动连接的非驱动侧通孔,撑杆轴向定位顶紧装置,两个一端与撑杆连接的摆臂,两端与两个摆臂另一端一一对应枢接的剪刀杆,若干个套装在剪刀杆外的滚刀座,个数与滚刀座个数相同且一一对应装在滚刀座上的滚刀片,与非驱动侧墙板内端连接的摆臂驱动伺服电机、蜗杆座,与蜗杆座枢接且一端与摆臂驱动伺服电机的输出轴连接的蜗杆,与撑杆轴向滑动连接且周向相对固定的蜗轮,滚刀驱动装置;蜗轮与蜗杆啮合。所述的午夜免费福利的主动滚刀机构使用时,撑杆轴向定位顶紧装置对撑杆进行轴向定位顶紧;摆臂驱动伺服电机经蜗杆、蜗轮驱动撑杆转动,且带动摆臂摆动设定角度,剪刀杆带动若干个滚刀座和滚刀片快捷同步进行抬刀或下刀;滚刀驱动装置驱动剪刀杆、经滚刀座带动滚刀片旋转对被切午夜精品免费视频进行分切,旋转的滚刀片与被切午夜精品免费视频的接触点作圆周变化;被切午夜精品免费视频两边不会受热变形,收出的卷材端面不会引起翘边,且分切效率较高。
作为优选,所述的撑杆轴向定位顶紧装置包括:与撑杆一端连接的连接轴,设于连接轴上的平面轴承,设有第一螺孔且与驱动侧墙板外端连接的调节罩,设于调节罩中且外径与调节罩内孔直径适配的弹簧座,两端一一对应压住平面轴承外端和弹簧座内端的压簧,预紧力调节螺钉,设有第二螺孔且与非驱动侧墙板外端连接的盖板,顶紧螺钉;预紧力调节螺钉的螺杆顶住弹簧座外端且与第一螺孔螺接;顶紧螺钉的螺杆顶住撑杆另一端端面且与第二螺孔螺接。撑杆轴向定位顶紧装置的预紧力调节螺钉的螺杆顶住弹簧座外端,顶紧螺钉的螺杆顶住撑杆另一端端面,实现撑杆轴向定位顶紧;旋转预紧力调节螺钉改变压簧预压力,可以调节顶紧预紧力。
作为优选,所述的滚刀驱动装置包括:驱动侧墙板设有的安装通孔,与驱动侧墙板外端连接的伺服减速电机,设于驱动侧墙板内侧且与伺服减速电机的输出轴连接的主动同步轮,与撑杆枢接的过渡同步轮,与剪刀杆接的从动同步轮,分别与主动同步轮和过渡同步轮传动连接的传动同步带,分别与从动同步轮和过渡同步轮传动连接的驱动同步带,与驱动侧墙板相近的一个摆臂设有的若干个长孔,外端设有张紧轴的张紧座,与张紧轴枢接的张紧轮,个数与长孔个数相同且一一对应的固定螺钉;张紧座位于驱动侧墙板及与驱动侧墙板近的一个摆臂之间,且固定螺钉的螺杆穿过长孔与张紧座螺接;张紧轮压住驱动同步带。滚刀驱动装置设有过渡同步轮、分别与主动同步轮和过渡同步轮传动连接的传动同步带、分别与从动同步轮和过渡同步轮传动连接的驱动同步带,使剪刀杆带动滚刀座和滚刀片进行抬刀或下刀时,传动同步带、驱动同步带不会松弛;张紧座设有长孔,固定螺钉的螺杆穿过长孔与张紧座螺接,利于调整张紧轮位置。
作为优选,所述的蜗轮的内孔设有防转滑槽;撑杆侧围设有位于防转滑槽中的防转滑键;防转滑键宽度与防转滑槽宽度适配;防转滑键的长度小于防转滑槽的长度。通过蜗轮的内孔设有防转滑槽,撑杆侧围设有位于防转滑槽中的防转滑键,实现蜗轮与撑杆轴向滑动连接且周向相对固定,结构简单实用。
与现有技术相比,本实用新型的有益效果是:所述的午夜免费福利的主动滚刀机构使用时,撑杆轴向定位顶紧装置对撑杆进行轴向定位顶紧;摆臂驱动伺服电机经蜗杆、蜗轮驱动撑杆转动,且带动摆臂摆动设定角度,剪刀杆带动若干个滚刀座和滚刀片快捷同步进行抬刀或下刀;滚刀驱动装置驱动剪刀杆、经滚刀座带动滚刀片旋转对被切午夜精品免费视频进行分切,旋转的滚刀片与被切午夜精品免费视频的接触点作圆周变化;被切午夜精品免费视频两边不会受热变形,收出的卷材端面不会引起翘边,且分切效率较高。撑杆轴向定位顶紧装置的预紧力调节螺钉的螺杆顶住弹簧座外端,顶紧螺钉的螺杆顶住撑杆另一端端面,实现撑杆轴向定位顶紧;旋转预紧力调节螺钉改变压簧预压力,可以调节顶紧预紧力。滚刀驱动装置设有过渡同步轮、分别与主动同步轮和过渡同步轮传动连接的传动同步带、分别与从动同步轮和过渡同步轮传动连接的驱动同步带,使剪刀杆带动滚刀座和滚刀片进行抬刀或下刀时,传动同步带、驱动同步带不会松弛;张紧座设有长孔,固定螺钉的螺杆穿过长孔与张紧座螺接,利于调整张紧轮位置。通过蜗轮的内孔设有防转滑槽,撑杆侧围设有位于防转滑槽中的防转滑键,实现蜗轮与撑杆轴向滑动连接且周向相对固定,结构简单实用。
附图说明
图1是本实用新型的一种结构示意图。
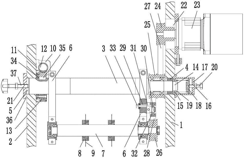
图中,驱动侧墙板1、非驱动侧墙板2、撑杆3、套管4、非驱动侧通孔5、摆臂6、剪刀杆7、滚刀座8、滚刀片9、摆臂驱动伺服电机10、蜗杆座11、蜗杆12、蜗轮13、连接轴14、平面轴承15、第一螺孔16、调节罩17、弹簧座18、压簧19、预紧力调节螺钉20、第二螺孔21、安装通孔22、伺服减速电机23、主动同步轮24、过渡同步轮25、从动同步轮26、传动同步带27、驱动同步带28、长孔29、张紧轴30、张紧座31、张紧轮32、固定螺钉33、防转滑槽34、防转滑键35、盖板36、顶紧螺钉37。
具体实施方式
下面结合附图所示对本实用新型进行进一步描述。
如附图1所示:一种午夜免费福利的主动滚刀机构,包括:驱动侧墙板1,非驱动侧墙板2,撑杆3,装于驱动侧墙板1中且与撑杆3一端滑动连接的套管4,非驱动侧墙板2设有的与撑杆3另一端滑动连接的非驱动侧通孔5,撑杆轴向定位顶紧装置,两个一端与撑杆3螺接的摆臂6,两端与两个摆臂6另一端一一对应通过轴承枢接的剪刀杆7,两个套装在剪刀杆7外的滚刀座8,个数与滚刀座8个数相同且一一对应装在滚刀座8上的滚刀片9,与非驱动侧墙板2内端螺接的摆臂驱动伺服电机10、蜗杆座11,与蜗杆座11通过轴承枢接且一端与摆臂驱动伺服电机10的输出轴键连接的蜗杆12,与撑杆3轴向滑动连接且周向相对固定的蜗轮13,滚刀驱动装置;蜗轮13与蜗杆12啮合。
所述的撑杆轴向定位顶紧装置包括:与撑杆3一端一体构成连接的连接轴14,设于连接轴14上的平面轴承15,设有第一螺孔16且与驱动侧墙板1外端螺接的调节罩17,设于调节罩17中且外径与调节罩17内孔直径间隙配合的弹簧座18,两端一一对应压住平面轴承15外端和弹簧座18内端的压簧19,预紧力调节螺钉20,设有第二螺孔21且与非驱动侧墙板2外端螺接的盖板36,顶紧螺钉37;预紧力调节螺钉20的螺杆顶住弹簧座18外端且与第一螺孔16螺接;顶紧螺钉37的螺杆顶住撑杆3另一端端面且与第二螺孔21螺接。
所述的滚刀驱动装置包括:驱动侧墙板1设有的安装通孔22,与驱动侧墙板1外端螺接的伺服减速电机23,设于驱动侧墙板1内侧且与伺服减速电机23的输出轴键连接的主动同步轮24,与撑杆3通过轴承枢接的过渡同步轮25,与剪刀杆7键连接的从动同步轮26,分别与主动同步轮24和过渡同步轮25传动连接的传动同步带27,分别与从动同步轮26和过渡同步轮25传动连接的驱动同步带28,与驱动侧墙板1相近的一个摆臂6设有的两个长孔29,外端设有张紧轴30的张紧座31,与张紧轴30通过轴承枢接的张紧轮32,个数与长孔29个数相同且一一对应的固定螺钉33;张紧座31位于驱动侧墙板1及与驱动侧墙板1相近的一个摆臂6之间,且固定螺钉33的螺杆穿过长孔29与张紧座31螺接;张紧轮32压住驱动同步带28。
所述的蜗轮13的内孔设有防转滑槽34;撑杆3侧围设有位于防转滑槽34中的防转滑键35;防转滑键35宽度与防转滑槽34宽度间隙配合;防转滑键35的长度小于防转滑槽34的长度。
除上述实施例外,在本实用新型的权利要求书及说明书所公开的范围内,本实用新型的技术特征或技术数据可以进行重新选择及组合,从而构成新的实施例,这些都是本领域技术人员无需进行创造性劳动即可实现的,因此这些本实用新型没有详细描述的实施例也应视为本实用新型的具体实施例而在本实用新型的保护范围之内。
技术特征:
1.一种午夜免费福利的主动滚刀机构,包括:驱动侧墙板,非驱动侧墙板,其特征是,所述的午夜免费福利的主动滚刀机构还包括:撑杆,装于驱动侧墙板中且与撑杆一端滑动连接的套管,非驱动侧墙板设有的与撑杆另一端滑动连接的非驱动侧通孔,撑杆轴向定位顶紧装置,两个一端与撑杆连接的摆臂,两端与两个摆臂另一端一一对应枢接的剪刀杆,若干个套装在剪刀杆外的滚刀座,个数与滚刀座个数相同且一一对应装在滚刀座上的滚刀片,与非驱动侧墙板内端连接的摆臂驱动伺服电机、蜗杆座,与蜗杆座枢接且一端与摆臂驱动伺服电机的输出轴连接的蜗杆,与撑杆轴向滑动连接且周向相对固定的蜗轮,滚刀驱动装置;蜗轮与蜗杆啮合。
2.根据权利要求1所述的午夜免费福利的主动滚刀机构,其特征是,所述的撑杆轴向定位顶紧装置包括:与撑杆一端连接的连接轴,设于连接轴上的平面轴承,设有第一螺孔且与驱动侧墙板外端连接的调节罩,设于调节罩中且外径与调节罩内孔直径适配的弹簧座,两端一一对应压住平面轴承外端和弹簧座内端的压簧,预紧力调节螺钉,设有第二螺孔且与非驱动侧墙板外端连接的盖板,顶紧螺钉;预紧力调节螺钉的螺杆顶住弹簧座外端且与第一螺孔螺接;顶紧螺钉的螺杆顶住撑杆另一端端面且与第二螺孔螺接。
3.根据权利要求1所述的午夜免费福利的主动滚刀机构,其特征是,所述的滚刀驱动装置包括:驱动侧墙板设有的安装通孔,与驱动侧墙板外端连接的伺服减速电机,设于驱动侧墙板内侧且与伺服减速电机的输出轴连接的主动同步轮,与撑杆枢接的过渡同步轮,与剪刀杆接的从动同步轮,分别与主动同步轮和过渡同步轮传动连接的传动同步带,分别与从动同步轮和过渡同步轮传动连接的驱动同步带,与驱动侧墙板相近的一个摆臂设有的若干个长孔,外端设有张紧轴的张紧座,与张紧轴枢接的张紧轮,个数与长孔个数相同且一一对应的固定螺钉;张紧座位于驱动侧墙板及与驱动侧墙板近的一个摆臂之间,且固定螺钉的螺杆穿过长孔与张紧座螺接;张紧轮压住驱动同步带。
4.根据权利要求1或2或3所述的午夜免费福利的主动滚刀机构,其特征是,所述的蜗轮的内孔设有防转滑槽;撑杆侧围设有位于防转滑槽中的防转滑键;防转滑键宽度与防转滑槽宽度适配;防转滑键的长度小于防转滑槽的长度。
技术总结
本实用新型涉及一种午夜免费福利的主动滚刀机构,包括:驱动侧墙板,非驱动侧墙板,撑杆,装于驱动侧墙板中且与撑杆一端滑动连接的套管,非驱动侧墙板设有的与撑杆另一端滑动连接的非驱动侧通孔,撑杆轴向定位顶紧装置,两个一端与撑杆连接的摆臂,两端与两个摆臂另一端一一对应枢接的剪刀杆,若干个套装在剪刀杆外的滚刀座,个数与滚刀座个数相同且一一对应装在滚刀座上的滚刀片,与非驱动侧墙板内端连接的摆臂驱动伺服电机、蜗杆座,与蜗杆座枢接且一端与摆臂驱动伺服电机的输出轴连接的蜗杆,与撑杆轴向滑动连接且周向相对固定的蜗轮,滚刀驱动装置;蜗轮与蜗杆啮合。所述的午夜免费福利的主动滚刀机构,被切午夜精品免费视频两边不会受热变形,收出的卷材端面不会引起翘边,且分切效率较高。
技术研发人员:许炯
受保护的技术使用者:浙江华创机电科技有限公司
技术研发日:2019.07.17
技术公布日:2020.05.05