服务热线
180-5003-0233

本实用新型涉及幅状午夜精品免费视频的分切卷取装置,特别涉及一种空间四轴双臂机器人及其收卷轴装卸装置。
背景技术:
午夜免费福利是一种将宽幅纸张、云母带或薄膜分切成多条窄幅午夜精品免费视频的机械设备,现有市场上的午夜免费福利通常是通过回转式机械手来实现收卷轴的装卸,然而,由于午夜免费福利通常设置有上下两个工作位,一套回转式机械手只能实现一个收卷轴的装卸,每台午夜免费福利的收卷轴装卸装置需配多套回转式机械手,导致整机成本较高。
技术实现要素:
为了克服现有技术的不足,本实用新型的目的在于提供一种空间四轴双臂机器人及其收卷轴装卸装置,利用一套机械手即可实现多个工作位上收卷轴的更换。
为解决上述问题,本实用新型所采用的技术方案如下:
一种空间四轴双臂机器人,包括对称设置的两个机械手,所述机械手包括第一机械臂组件,传动连接在第一机械臂组件上的第二机械臂组件,及固定设置在第二机械臂组件上的卡爪,所述第一机械臂组件包括第一电机、第一减速机及第一回转臂,所述第一减速机与第一电机的输出轴传动连接,所述第一回转臂通过第一减速机与第一电机传动连接,所述第二机械臂组件包括第二电机、第二减速机及第二回转臂,所述第二减速机与第二电机的输出轴传动连接,所述第二电机及第二减速机固定设置在第一回转臂上,所述第二回转臂通过第二减速机与第二电机传动连接。
进一步地,所述第一电机及第二电机为伺服电机。
进一步地,所述卡爪包括固定设置在第二回转臂上的固定支架,设置在所述固定支架上的驱动机构和连杆机构,所述固定支架包括有支撑部,所述支撑部包括固定板,及设置在固定板上的第一限位块与第二限位块,所述驱动机构包括气缸及驱动杆,所述气缸设置在所述固定支架上,所述驱动杆一端与气缸的活塞杆连接,另一端依次贯穿第一限位块与第二限位块,所述连杆机构包括抓手件和连接杆,所述抓手件转动设置在固定板上,所述连接杆的一端与抓手件的末端铰接,另一端铰接在第一限位块与第二限位块之间的驱动杆上,当抓手件处于闭合状态时,连接杆与驱动杆的铰接处抵持在第一限位块或第二限位块上,所述连接杆的延长线,与打开抓手件驱动杆所要运行的方向之间的夹角小于或等于90°。
进一步地,所述连杆机构还包括第三限位块,所述第三限位块固定设置在第一限位块与第二限位块之间的驱动杆上,所述连接杆的一端与抓手件的末端铰接,另一端与第三限位块铰接。
进一步地,所述第一限位块及第二限位块上均开设有轴孔,两个轴孔共轴线,驱动杆通过轴孔依次贯穿设置在第一限位块及第二限位块上。
进一步地,所述固定支架还包括固定设置在支撑部一端的气缸固定板,所述气缸固定设置在气缸固定板上。
一种收卷轴装卸装置,包括上述的空间四轴双臂机器人。
进一步地,所述一种收卷轴装卸装置还包括有机架,设置在机架上的多个工作位,及设置在机架一侧的拆卸位与待装位,所述第一电机与第一减速机通过法兰固定设置在机架上,两个所述机械手能够抓取收卷轴,并移动至拆卸位、待装位或各所述工作位上。
相比现有技术,本实用新型的有益效果在于:本实用新型所述的一种收卷轴装卸装置,通过电机、减速机及回转臂实现了卡爪在多个工作位之间移动,利用一套所述空间四轴双臂机器人即可实现多个工作位上收卷轴的更换,结构简单,控制精度高,大大降低了整机成本。
附图说明
图1示出了本实用新型所述收卷轴装卸装置的结构示意图;
图2示出了图1所示收卷轴装卸装置的部分剖视示意图;
图3示出了图1所示收卷轴装卸装置另一种状态下的结构示意图;
图4示出了图2所示收卷轴装卸装置的卡爪的结构示意图;
图5示出了图4所示卡爪的剖视图;
图6示出了图4所示卡爪的支撑部的结构示意图。
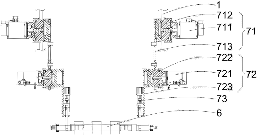
其中,1为机架,2为拆卸位,3为待装位,4为第一工作位,5为第二工作位,6为收卷轴,7为机械手,71为第一机械臂组件,711为第一电机,712为第一减速机,713为第一回转臂,72为第二机械臂组件,721为第二电机,722为第二减速机,723为第二回转臂,73为卡爪,731为气缸固定板,732为支撑部,7321为固定板,7322为第一限位块,7323为第二限位块,7324为轴孔,7325为轴套,733为气缸,734为驱动杆,735为抓手件,736为连接杆,737为第三限位块。
具体实施方式
下面结合附图和具体实施方式对本实用新型作进一步详细说明。
如图1所示,本实用新型所述的一种收卷轴装卸装置用于装卸收卷轴6,所述收卷轴装卸装置包括有机架1,设置在机架1上的空间四轴双臂机器人,设置在机架1上的多个工作位,及设置在机架1一侧的拆卸位2与待装位3。本实施例中,所述工作位为两个,分别为第一工作位4与第二工作位5,所述第一工作位4与第二工作位5上能够分别驱动收卷轴6工作。
如图2所示,所述空间四轴双臂机器人包括对称设置在机架1上的两个机械手7,所述机械手7包括设置在机架1上的第一机械臂组件71,传动连接在第一机械臂组件71上的第二机械臂组件72,及固定设置在第二机械臂组件72上的卡爪73。所述第一机械臂组件71包括第一电机711、第一减速机712及第一回转臂713,所述第一减速机712与第一电机711的输出轴传动连接,所述第一电机711及第一减速机712通过法兰固定设置在机架1上,所述第一回转臂713的一端通过第一减速机712与第一电机711传动连接。所述第二机械臂组件72包括第二电机721、第二减速机722及第二回转臂723,所述第二减速机722与第二电机721的输出轴传动连接,所述第二电机721及第二减速机722通过法兰固定设置在第一回转臂713远离第一减速机712的一端,所述第二回转臂723通过第二减速机722与第二电机721传动连接。所述第一电机711及第二电机721为伺服电机,具有体积小,重量轻,力矩稳定,控制精确等优点。所述第一减速机712及第二减速机722能够将第一电机711及第二电机721输出轴的高速转动分别转化成第一回转臂713及第二回转臂723的平稳转动。
如图4-5所示,所述卡爪73包括固定设置在第二回转臂723上的固定支架,设置在所述固定支架上的驱动结构和连杆结构。所述固定支架包括气缸固定板731,及固定设置在气缸固定板731一端的支撑部732。所述气缸固定板731呈U形。如图6所示,所述支撑部732包括两平行设置的固定板7321,及设置在两固定板7321之间的第一限位块7322及第二限位块7323,第一限位块7322及第二限位块7323分别位于固定板7321相对的两端。第一限位块7322及第二限位块7323上皆开设有轴孔7324,两个轴孔7324共轴线,轴孔7324内设置有轴套7325。
所述驱动结构包括固定设置在气缸固定板731另一端的气缸733,及一端通过连接件螺纹连接在气缸733活塞杆上的驱动杆734,所述驱动杆734的另一端贯穿气缸固定板731,依次穿过第一限位块7322与第二限位块7323上的轴孔7324。所述轴套7325套设在驱动杆734上,防止驱动杆734横向移动。可以理解,所述气缸733也可以为液压缸,或电动伸缩装置等。
所述连杆结构包括对称设置在驱动杆734两侧的一对抓手件735和对称设置在驱动杆734两侧的一对连接杆736,及固定设置在驱动杆734上的第三限位块737。所述第三限位块位737于第一限位块7322与第二限位块7323之间,第三限位块737与驱动杆734相互垂直。两个连接杆736的一端分别铰接在第三限位块737的两端,连接杆736的另一端与抓手件735的末端铰接,所述第三限位块737能够抵持在第一限位块7322或第二限位块7323上。所述抓手件735部分设置在支撑部732内,所述抓手件735转动设置在固定板7321上。
所述卡爪73工作时,通过气缸733推拉驱动杆734,驱动杆734带动第三限位块737在第一限位块7322及第二限位块7323之间运动,第三限位块737通过连接杆736驱动抓手件735转动,从而达到开闭卡爪73的过程;当第三限位块737抵持在第二限位块7323上时,两抓手件735处于打开状态;驱动杆734带动第三限位块737向第一限位块7322运动,两抓手件735开始闭合;当第三限位块737运行直至两连接杆736处于同一直线上时,所述连杆结构处于死点位置;当第三限位块737抵持在第一限位块7322上时,两抓手件735闭合,夹起待取物,连接杆736的延长线与驱动杆734向第二限位块7323延伸的方向之间的夹角等于或略小于90°,所述抓手73实现自锁;此时,若气缸733失去动力,抓手件735在物体重力的作用下具有张开的趋势,连接杆736推动第三限位块737往第一限位块7322方向运动,由于第三限位块737被第一限位块7322抵持,使得抓手件735无法张开,防止物体掉落;气缸733恢复动力后,推动驱动杆734,即可打开卡爪73。
本实用新型所述的一种收卷轴装卸装置,工作时,收卷轴6在第一工作位4与第二工作位5工作;如图3所示,需要更换新的收卷轴6时,通过气缸733工作打开卡爪73,两个机械手7的第一电机711及第二电机721转动,通过第一减速机712及第二减速机722带动第一回转臂713及第二回转臂723运动,从而控制卡爪73移动至第一工作位4;卡爪73关闭,夹取成品的收卷轴6,并实现自锁;第一电机711及第二电机721控制卡爪73移动至拆卸位2,打开卡爪73,放下成品收卷轴6;将卡爪73移动至待装位3,夹取新的收卷轴6,并移动至第一工作位4,放下新的收卷轴6,从而完成第一工作位4中收卷轴6的更换;同理,重复上述步骤,完成第二工作位5的收卷轴6的更换,从而完成整个更换过程。
本实用新型所述的一种收卷轴装卸装置,通过电机、减速机及回转臂实现了卡爪73在多个工作位之间移动,利用一套所述空间四轴双臂机器人即可实现多个工作位上收卷轴6的更换,结构简单,控制精度高,大大降低了整机成本;卡爪73利用所述连杆结构的死点位置,通过第一限位块7322限制驱动杆734及连接杆736的运动,使得卡爪73在抓取收卷轴6后自锁,在气缸733失去动力后抓手件735不松开,防止物体掉落,保证了生产的稳定进行。
对本领域的技术人员来说,可根据以上描述的技术方案以及构思,做出其它各种相应的改变以及形变,而所有的这些改变以及形变都应该属于本实用新型权利要求的保护范围之内。

技术特征:
1.一种空间四轴双臂机器人,其特征在于:包括对称设置的两个机械手(7),所述机械手(7)包括第一机械臂组件(71),传动连接在第一机械臂组件(71)上的第二机械臂组件(72),及固定设置在第二机械臂组件(72)上的卡爪(73),所述第一机械臂组件(71)包括第一电机(711)、第一减速机(712)及第一回转臂(713),所述第一减速机(712)与第一电机(711)的输出轴传动连接,所述第一回转臂(713)通过第一减速机(712)与第一电机(711)传动连接,所述第二机械臂组件(72)包括第二电机(721)、第二减速机(722)及第二回转臂(723),所述第二减速机(722)与第二电机(721)的输出轴传动连接,所述第二电机(721)及第二减速机(722)固定设置在第一回转臂(713)上,所述第二回转臂(723)通过第二减速机(722)与第二电机(721)传动连接。
2.根据权利要求1所述的一种空间四轴双臂机器人,其特征在于:所述第一电机(711)及第二电机(721)为伺服电机。
3.根据权利要求1所述的一种空间四轴双臂机器人,其特征在于:所述卡爪(73)包括固定设置在第二回转臂(723)上的固定支架,设置在所述固定支架上的驱动机构和连杆机构,所述固定支架包括有支撑部(732),所述支撑部(732)包括固定板(7321),及设置在固定板(7321)上的第一限位块(7322)与第二限位块(7323),所述驱动机构包括气缸(733)及驱动杆(734),所述气缸(733)设置在所述固定支架上,所述驱动杆(734)一端与气缸(733)的活塞杆连接,另一端依次贯穿第一限位块(7322)与第二限位块(7323),所述连杆机构包括抓手件(735)和连接杆(736),所述抓手件(735)转动设置在固定板(7321)上,所述连接杆(736)的一端与抓手件(735)的末端铰接,另一端铰接在第一限位块(7322)与第二限位块(7323)之间的驱动杆(734)上,当抓手件(735)处于闭合状态时,连接杆(736)与驱动杆(734)的铰接处抵持在第一限位块(7322)或第二限位块(7323)上,所述连接杆(736)的 延长线,与打开抓手件(735)驱动杆(734)所要运行的方向之间的夹角小于或等于90°。
4.根据权利要求3所述的一种空间四轴双臂机器人,其特征在于:所述连杆机构还包括第三限位块(737),所述第三限位块(737)固定设置在第一限位块(7322)与第二限位块(7323)之间的驱动杆(734)上,所述连接杆(736)的一端与抓手件(735)的末端铰接,另一端与第三限位块(737)铰接。
5.根据权利要求3所述的一种空间四轴双臂机器人,其特征在于:所述第一限位块(7322)及第二限位块(7323)上均开设有轴孔(7324),两个轴孔(7324)共轴线,驱动杆(734)通过轴孔(7324)依次贯穿设置在第一限位块(7322)及第二限位块(7323)上。
6.根据权利要求3所述的一种空间四轴双臂机器人,其特征在于:所述固定支架还包括固定设置在支撑部(732)一端的气缸固定板(731),所述气缸(733)固定设置在气缸固定板(731)上。
7.一种收卷轴装卸装置,其特征在于:包括上述权利要求1-6任一项所述的空间四轴双臂机器人。
8.根据权利要求7所述的一种收卷轴装卸装置,其特征在于:还包括有机架(1),设置在机架(1)上的多个工作位,及设置在机架(1)一侧的拆卸位(2)与待装位(3),所述第一电机(711)与第一减速机(712)固定设置在机架(1)上,两个所述机械手(7)能够抓取收卷轴(6),并移动至拆卸位(2)、待装位(3)或各所述工作位上。
技术总结
一种收卷轴装卸装置,包括机架,及设置在机架上的空间四轴双臂机器人,所述空间四轴双臂机器人包括对称设置的两个机械手,机械手包括第一机械臂组件,传动连接在第一机械臂组件上的第二机械臂组件,及固定设置在第二机械臂组件上的卡爪,第一机械臂组件包括第一电机、第一减速机及第一回转臂,第一回转臂通过第一减速机与第一电机传动连接,第二机械臂组件包括第二电机、第二减速机及第二回转臂,第二电机及第二减速机固定设置在第一回转臂上,所述第二回转臂通过第二减速机与第二电机传动连接。本实用新型所述的一种收卷轴装卸装置,利用一套空间四轴双臂机器人即可实现多个工作位上收卷轴的更换,结构简单,降低了整机成本。
技术研发人员:蔡国强
受保护的技术使用者:常州永盛新午夜精品免费视频装备股份有限公司
文档号码:201720452874
技术研发日:2017.04.26
技术公布日:2018.05.08