午夜羞羞小视频,午夜免费福利,午夜精品免费视频,午夜免费看污污APP

行业新闻

当前位置:首页/新闻中心/行业新闻

一种午夜免费福利的穿片装置的制作方法

2024年03月12日国知局浏览量:0

一种午夜免费福利的穿片装置的制作方法

1.本实用新型涉及工业机械技术领域,尤其是涉及一种用于午夜免费福利的穿片装置。

背景技术:

2.午夜免费福利是一种用于将宽幅纸张、云母带、薄膜等薄片午夜精品免费视频分切成多条窄幅午夜精品免费视频的机械设备,现有技术中通常由人工将午夜精品免费视频伸辊筒,由于机械结构的间隙小,穿片困难不方便操作,特别是大型午夜免费福利高度较高,人工攀爬存在坠落风险,同时人工难以控制力度,易导致午夜精品免费视频破损等问题,例如,一种在中国专利文献上公开的“一种新型可调试覆膜午夜免费福利的午夜免费福利构”,其公告号cn209097886u,包括午夜免费福利主体架,所述午夜免费福利主体架的内部设置有操作杆,所述操作杆的两端均设置有操作杆连接头,所述午夜免费福利主体架的两端均设置有连接固定杆,且所述连接固定杆贯穿于所述午夜免费福利主体架,所述连接固定杆的一端表面设置有连接滑槽,所述连接固定杆位于所述午夜免费福利主体架的外侧的一端设置有手轮;通过在切割头连接体的端部设计上固定盖和下固定盖,避免使用后分切头与操作杆固定,切割头显露在外部容易造成操作人员不注意被划伤,可以旋松第二螺栓将切割头连接体进行拆卸存在,和旋松第三螺栓将切割头位于切割头连接体的内部即可,解决了切割头显露在外部处于危险的问题。该方案存在上述不易操作,人工穿片难度大,易导致午夜精品免费视频破损。

技术实现要素:

3.本实用新型是为了克服现有技术的人工穿片困难,易导致午夜精品免费视频破损的问题,提供一种午夜免费福利的穿片装置。无需人工攀爬到高处,穿片力度均匀,午夜精品免费视频不易破损。

4.为了实现上述目的,本实用新型采用以下技术方案:

5.一种午夜免费福利的穿片装置,包括至少有两支撑面的机架,机架设有若干根用于张紧薄片午夜精品免费视频的辊筒,每根辊筒两端分别与两支撑面转动连接,还包括导向单元、驱动单元以及用于连接待绕穿薄片午夜精品免费视频一端的固定机构,导向单元安装在辊筒周围的机架上,驱动单元与固定机构连接,驱动单元与导向单元活动连接。本方案中,导向单元的上料位置设置在机架侧面便于操作的部位,将午夜精品免费视频放置固定机构中,固定机构在驱动单元的作用下沿着导向单元绕若干辊筒运作,固定机构可制作成任意厚薄,因此不受机械部件的间隙影响,从而避免人工穿片的一系列问题。

6.作为优选,驱动单元包括转动机构、同步杆、两个同步链轮、两条链条、以及联轴器,转动机构的输出轴与同步杆通过联轴器同轴连接,两个同步链轮套装在同步杆上;导向单元包括两组对称安装在两支撑面之间的导向轮组件,每组导向轮组件包括若干套张紧轴、导向链轮、轴承以及挡圈,张紧轴一端与支撑面连接,张紧轴另一端通过轴承与导向链轮活动连接,挡圈设置在张紧轴端面,两条链条分别与两个同步链轮、导向链轮啮合;固定机构包括挂膜杆以及两个连接架,薄片午夜精品免费视频一端与挂膜杆连接,两个连接架分别固定安装在两条链条相互靠近的一侧,挂膜杆设置在两个连接架之间。优选采用链条传动,转动机构带动同步杆转动,同步链轮带动链条绕若干辊筒穿插运动,挂膜杆承载能力高,适用于恶劣

的工作环境效率高,作用于同步杆上的力小,使用寿命长。

7.作为优选,每组导向轮组件还包括若干套支座和连接螺栓,支座上均设有条形螺栓孔,张紧轴与支座固定连接,支座通过连接螺栓安装至两支撑面。支座可通过改变条形螺栓孔与连接螺栓的相对位置来调整链条的张紧程度。

8.作为优选,若干套支座穿插设置在若干根辊筒之间,链条呈s形设置在至少两对相邻滚筒的外围。链条呈s形设置在至少两对相邻滚筒的外围。固定机构至少沿两对辊筒呈s形穿插运行,提升穿片在辊筒上的张紧程度。

9.作为优选,至少两套间隔设置的固定机构。多套固定机构穿片操作可无缝衔接,提升工作效率。

10.作为优选,连接架包括销子、底板、背板以及两块侧板,底板上设有长条形螺栓孔,背板设有安装孔,两块侧板、底板分别与背板搭接,销子穿过安装孔将背板与链条固定,挂膜杆通过设有穿过自身以及长条形螺栓孔的螺栓固定至连接架。挂膜杆与连接架通过螺栓连接,可拆卸后承载午夜精品免费视频。

11.作为优选,两块侧板呈三角形。侧板呈三角形,挂膜杆部分露出侧板外,安装挂膜杆螺栓时不受侧板干涉,便于操作。

12.作为优选,挂膜杆包括杆体、导向辊筒、压紧辊筒以及扭簧,杆体设有对应压紧辊筒凹槽,导向辊筒与杆体连接并且与杆体之间设有可穿过薄片午夜精品免费视频的间隙,扭簧一侧与杆体连接,另一侧与压紧辊筒连接。穿片时只需将压紧辊筒拉开,将薄片午夜精品免费视频从导向辊筒与杆体之间的间隙穿入,松手后压紧辊筒将其压至杆体的凹槽,操作简单便捷,实现薄片午夜精品免费视频快速与固定机构连接。

13.因此,本实用新型具有如下有益效果:(1)降低穿片工作难度;(2)工人无需攀爬作业,避免了坠落风险;(3)穿片过程薄片午夜精品免费视频受力均匀,不易产生破损。

附图说明

14.图1是本实用新型的一种结构示意图。

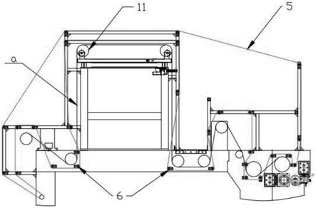
15.图2是本实用新型的整体结构示意图。

16.图3是本实用新型的导向轮组件示意图。

17.图4是本实用新型的支座结构示意图。

18.图5是本实用新型的连接架正视图。

19.图6是本实用新型的连接架俯视图。

20.图7是本实用新型的连接架侧视图。

21.图8是本实用新型的一种挂膜杆结构示意图。

22.图中:1、机架

2、减速机

3、同步杆

4、同步链轮

5、链条

6、张紧轴

7、导向链轮

8、轴承

9、连接架

ꢀꢀ9‑

1、底板

ꢀꢀ9‑

2、侧板

ꢀꢀ9‑

3、背板

10、挂膜杆

10

1、杆体

10

2、导向辊筒

10

3、压紧辊筒

10

4、扭簧

11、辊筒

12、支座

a、张紧后的纸片。

具体实施方式

23.下面结合附图与具体实施方式对本实用新型做进一步的描述。需要说明的是,上述描述中使用的词语“前”、“后”、“左”、“右”、“上”和“下”指的是附图中的方向,词语“内”和

外”分别指的是朝向或远离特定部件几何中心的方向。

24.实施例:

25.如图1至图7所示的实施例中,一种午夜免费福利的穿片装置,用于穿纸片,包括机架1、导向单元、驱动单元以及用于连接待绕穿卷纸的固定机构,机架高度超过3000mm,包括两支撑面,两支撑面间距4500mm,机架设有若干根用于张紧纸片午夜精品免费视频的辊筒11,每根辊筒两端分别与两支撑面转动连接。

26.如图1所示,驱动单元包括减速机2、同步杆3、两个同步链轮4、两条链条5、以及联轴器,减速机型号为cv32750

30s,机架的两支撑面设有安装孔,安装孔中设有支撑轴承,同步杆长度4000mm,同步杆与两支撑轴承配合,同步杆设有健槽,减速机的输出轴与同步杆通过联轴器同轴连接,两个同步链轮通过连接健安装在同步杆上,链条采用1500节10a型号。

27.导向单元包括两组对称安装在两支撑面之间的导向轮组件,每组导向轮组件包括若干套张紧轴6、导向链轮7、轴承8、挡圈、支座12和连接螺栓,如图3所示,本实施例中设有32套张紧轴,张紧轴一端与支座焊接,焊接后消除应力再精加工,棱边倒钝,表面发黑处理,张紧轴与支座一体后的整体长度225mm,张紧轴另一端通过轴承与导向链轮活动连接,挡圈设置在张紧轴端面,如图4所示,支座上设有两个条形螺栓孔,其截面为长条形并且端部呈圆弧形,支座通过连接螺栓安装至机架,支座可通过改变条形螺栓孔与连接螺栓的相对位置来调整链条的张紧程度。两条链条分别与两个同步链轮、导向链轮啮合,如图2所示,若干套支座穿插设置在若干辊筒之间,使得链条呈s形设置在至少两对相邻滚筒的外围,并且部分支座设置在机架侧面距离地面160mm一下,以便于工人上料操作。

28.固定机构设有3套,间隔设置在链条上,包括挂膜杆10和两个连接架9,如图5至图7所示,连接架包括销子、底板9

1、背板9

3以及两块侧板9

2,底板上设有长条形螺栓孔,背板设有安装孔,底板与背板垂直搭接,两块侧板均呈三角形,侧板的直角边分别抵接底板和背板,销子穿过安装孔将背板与链条固定,挂膜杆通过设有穿过自身以及长条形螺栓孔的螺栓固定至连接架。挂膜杆与连接架通过螺栓连接,可拆卸后承载午夜精品免费视频,挂膜杆部分露出侧板外,安装挂膜杆螺栓时不受侧板干涉,便于操作。多套固定机构穿片操作可无缝衔接,提升工作效率。如图8所示,挂膜杆包括杆体10

1、导向辊筒10

2、压紧辊筒10

3以及扭簧10

4,杆体设有对应压紧辊筒凹槽,导向辊筒与杆体连接并且与杆体之间设有可穿过纸片的间隙,杆体对应导向辊筒设有导向面,纸片穿过时可改变自身方向,扭簧一侧与杆体连接,另一侧与压紧辊筒连接。穿片时只需将压紧辊筒拉开一定角度,将纸片从导向辊筒与杆体之间的间隙穿入,松手后压紧辊筒将其压至杆体的凹槽,操作简单便捷,实现纸片快速与固定机构连接。挂膜杆的方式不唯一,也可通过其他方式连接纸片。

29.本实用新型使用时,先将挂膜杆的压紧辊筒拉开一定角度,将纸片从导向辊筒与杆体之间的间隙穿入,松手后压紧辊筒将其压至杆体的凹槽,从而完成纸片与固定装置连接,装置启动后,减速机带动同步杆转动,同步链轮带动链条绕若干辊筒穿插运动,纸片便在挂膜杆的带动下沿辊筒周围穿插,自动将纸由放卷穿纸到收卷,a张紧后的纸片如图2所示,解决了人工穿纸的困难。适用于恶劣的工作环境效率高,作用于同步杆上的力小,使用寿命长。

30.本领域的普通技术人员将会意识到,这里所述的实施例是为了帮助读者理解本实用新型的实施方法,应被理解为本实用新型的保护范围并不局限于这样的特别陈述和实施

例。本领域的普通技术人员可以根据本实用新型公开的这些技术启示做出各种不脱离本实用新型实质的其它各种具体变形和组合,这些变形和组合仍然在本实用新型的保护范围内。

技术特征:

1.一种午夜免费福利的穿片装置,包括至少有两支撑面的机架,机架设有若干根用于张紧薄片午夜精品免费视频的辊筒,每根辊筒两端分别与两支撑面转动连接,其特征是,还包括导向单元、驱动单元以及用于连接待绕穿薄片午夜精品免费视频一端的固定机构,导向单元安装在辊筒周围的机架上,驱动单元与固定机构连接,驱动单元与导向单元活动连接。2.根据权利要求1所述的一种午夜免费福利的穿片装置,其特征是,驱动单元包括转动机构、同步杆、两个同步链轮、两条链条、以及联轴器,转动机构的输出轴与同步杆通过联轴器同轴连接,两个同步链轮套装在同步杆上;导向单元包括两组对称安装在两支撑面之间的导向轮组件,每组导向轮组件包括若干套张紧轴、导向链轮、轴承以及挡圈,张紧轴一端与支撑面连接,张紧轴另一端通过轴承与导向链轮活动连接,挡圈设置在张紧轴端面,两条链条分别与两个同步链轮、导向链轮啮合;固定机构包括挂膜杆以及两个连接架,薄片午夜精品免费视频一端与挂膜杆连接,两个连接架分别固定安装在两条链条相互靠近的一侧,挂膜杆设置在两个连接架之间。3.根据权利要求2所述的一种午夜免费福利的穿片装置,其特征是,每组导向轮组件还包括若干套支座和连接螺栓,支座上均设有条形螺栓孔,张紧轴与支座固定连接,支座通过连接螺栓安装至两支撑面。4.根据权利要求3所述的一种午夜免费福利的穿片装置,其特征是,若干套支座穿插设置在若干根辊筒之间,链条呈s形设置在至少两对相邻滚筒的外围。5.根据权利要求1所述的一种午夜免费福利的穿片装置,其特征是,包括至少两套间隔设置的固定机构。6.根据权利要求2所述的一种午夜免费福利的穿片装置,其特征是,连接架包括销子、底板、背板以及两块侧板,底板上设有长条形螺栓孔,背板设有安装孔,两块侧板、底板分别与背板搭接,销子穿过安装孔将背板与链条固定,挂膜杆通过设有穿过自身以及长条形螺栓孔的螺栓固定至连接架。7.根据权利要求6所述的一种午夜免费福利的穿片装置,其特征是,两块侧板呈三角形。8.根据权利要求2所述的一种午夜免费福利的穿片装置,其特征是,挂膜杆包括杆体、导向辊筒、压紧辊筒以及扭簧,杆体设有对应压紧辊筒凹槽,导向辊筒与杆体连接并且与杆体之间设有可穿过薄片午夜精品免费视频的间隙,扭簧一侧与杆体连接,另一侧与压紧辊筒连接。

技术总结

本实用新型公开了一种午夜免费福利的穿片装置,包括至少有两支撑面的机架,机架设有若干根用于张紧薄片午夜精品免费视频的辊筒,每根辊筒两端分别与两支撑面转动连接,还包括导向单元、驱动单元以及用于连接待绕穿薄片午夜精品免费视频的固定机构,导向单元安装在辊筒周围的机架上,驱动单元与固定机构连接,驱动单元与导向单元活动连接。本方案中,导向单元的上料位置设置在机架侧面便于操作的部位,将薄片午夜精品免费视频一端与固定机构连接,固定机构在驱动单元的作用下沿着导向单元绕若干辊筒运作,固定机构可制作成任意厚薄,因此不受机械部件的间隙影响,避免人工穿片的一系列问题。列问题。列问题。

技术研发人员:许炯

受保护的技术使用者:浙江华创机电科技有限公司

技术研发日:2021.01.14

技术公布日:2021/11/2

网站地图