午夜羞羞小视频,午夜免费福利,午夜精品免费视频,午夜免费看污污APP

行业新闻

当前位置:首页/新闻中心/行业新闻

一种锂电池极片分切边料粉碎收集装置的制作方法

2023年12月01日国知局浏览量:0

一种锂电池极片分切边料粉碎收集装置的制作方法

本实用新型涉及锂电池生产领域,具体涉及一种锂电池极片分切边料粉碎收集装置。

背景技术:

基于目前锂电池分条机分切后两边会连续产生2条5~10mm边料,目前在午夜免费福利分切部下方采用一个废料收集箱收集,然后通过人工定时清理;

此方法使用存在很多问题,一是废料直接排在设备内部,易产生粉尘漂浮;二是分条机使用速度在50m/min,在此高速运行状态下废料收集箱很快就会收集满,然后人工需要频繁的停机清理废料,影响生产效率和质量稳定;三是废料在收集箱容易堆积,容易引起边料断裂,边料断裂又会引起旁边的正常极片分切出现质量问题。

技术实现要素:

本实用新型的目的是针对现有技术的不足,提供一种锂电池极片分切边料粉碎收集装置,解决现有锂电池生产过程中易产生粉尘、生产效率低、产品合格率低的问题。

本实用新型为实现上述目的所采用的技术方案是:

一种锂电池极片分切边料粉碎收集装置,其包括粉碎机构和收集机构,所述粉碎机构和收集机构通过粉尘管道相连通;其中,所述粉碎机构包括边料吸入管和粉碎机;所述收集机构包括负压抽风机构,及设于负压抽风机构下方的碎料收集箱。

所述负压抽风机构上端连接有排风管道,该排风管道与中央风力循环回收系统相连通。

所述粉碎机包括粉碎室,于粉碎室内部设有动刀机构和螺旋研磨机构,于粉碎室下部设有动力传输组件,该动力传输组件后端连接有传动电机。

所述边料吸入管可旋转的与粉碎机相连接。

所述边料吸入管内壁设有多个错位设置的“三角形”凸起,且从吸入管向输出端逐渐升高;于“三角形”凸起沿管壁设有弧形斜面。

通过带有“三角形”凸起,并能相当于粉碎机旋转的边料吸入管,能够将横向的边料矫正为竖直方向,从而能够更加有效的对边料进行粉碎,同时,由于“三角形”凸起后端凸起,能够有效防止粉碎时,碎屑从边料吸入管进入口弹出。

一种锂电池极片分切边料粉碎收集方法,其包括以下步骤:

(1)设置粉碎机构,该粉碎机构包括边料吸入管和粉碎机;

(2)设置收集机构,该收集机构包括碎料收集箱和设于碎料收集箱上部的负压抽风机构;

(3)设置吸尘管道,该吸尘管道两端分别连通粉碎机构和收集机构;

(4)将边料吸入管前端入口连接分切设备的废料出口端,启动负压抽风机构和粉碎机,负压抽风机构产生负压进行抽风,使边料从边料吸入管进入粉碎机,粉碎机将边料粉碎,形成碎屑,然后在抽风负压作用下,被排入碎料收集箱内,完成边料的粉碎收集。

本实用新型的有益效果是:一、针对粉碎漂浮,采用密封式吸尘机构,分切后产生的边料通过专用管道吸入粉碎装置内部,产生的粉尘均可以被吸到吸尘系统;二、针对收集箱易堆满的问题,此机构具有粉碎废料的功能,废料经过粉碎后再进入吸尘收集箱内,废料粉碎后所需占用收集箱的空间大大减少,这样就提高收集箱的利用率2倍以上,并且由于此机构采用的是粉碎抽离结构,采用的是设备外安装方式,因此收集箱不会局限于分条机的内部尺寸,可以根据需要独立设计收集箱的外形及尺寸;三、所以在提升废料收集箱利用率的同时,针对人工频繁停机清理废料的问题,又增加了收集箱本身的尺寸,根据实际生产需要定制收集箱的规格,因此收集箱独立于分条机外,因此无需停机即可清理废料。

附图说明

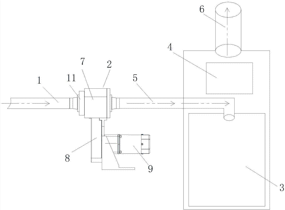
图1为本实用新型整体结构示意图;

图2为本实用新型边料吸入管内部结构示意图。

图中:1.边料吸入管 2.粉碎机 3.碎料收集箱 4.负压抽风机构

5.吸尘管道 6.排风管道 7.粉碎室 8.动力传输组件

9.传动电机 10.“三角形”凸起 11.边料吸入管传动机构。

具体实施方式

实施例:参见图1至图2,本实施例提供一种锂电池极片分切边料粉碎收集装置,其包括粉碎机构和收集机构,所述粉碎机构和收集机构通过粉尘管道5相连通;其中,所述粉碎机构包括边料吸入管1和粉碎机2;所述收集机构包括负压抽风机构4,及设于负压抽风机构4下方的碎料收集箱3。

所述负压抽风机构4上端连接有排风管道6,该排风管道6与中央风力循环回收系统相连通。

所述粉碎机2包括粉碎室7,于粉碎室7内部设有动刀机构和螺旋研磨机构,于粉碎室7下部设有动力传输组件8,该动力传输组件8后端连接有传动电机9。

所述边料吸入管1可旋转的与粉碎机2相连接。

所述边料吸入管1内壁设有多个错位设置的“三角形”凸起10,且从边料吸入管1向输出端逐渐升高;于“三角形”凸起10沿管壁设有弧形斜面。

于粉碎机2前端,与边料吸入管1连接处,设有边料吸入管传动机构11。

以上所述,仅为本实用新型的较佳可行实施例,并非用以局限本实用新型的专利范围,故凡运用本实用新型说明书内容所作的等效结构变化,均包含在本实用新型的保护范围。

一种锂电池极片分切边料粉碎收集装置的制作方法

技术特征:

1.一种锂电池极片分切边料粉碎收集装置,其特征在于,其包括粉碎机构和收集机构,所述粉碎机构和收集机构通过粉尘管道相连通;其中,所述粉碎机构包括边料吸入管和粉碎机;所述收集机构包括负压抽风机构,及设于负压抽风机构下方的碎料收集箱。

2.根据权利要求1所述的锂电池极片分切边料粉碎收集装置,其特征在于,所述负压抽风机构上端连接有排风管道,该排风管道与中央风力循环回收系统相连通。

3.根据权利要求1所述的锂电池极片分切边料粉碎收集装置,其特征在于,所述粉碎机包括粉碎室,于粉碎室内部设有动刀机构和螺旋研磨机构,于粉碎室下部设有动力传输组件,该动力传输组件后端连接有传动电机。

技术总结

本实用新型公开了一种锂电池极片分切边料粉碎收集装置,其特征在于,其包括粉碎机构和收集机构,所述粉碎机构和收集机构通过粉尘管道相连通;其中,所述粉碎机构包括边料吸入管和粉碎机;所述收集机构包括负压抽风机构,及设于负压抽风机构下方的碎料收集箱。本实用新型的有益效果是:采用密封式吸尘机构,分切后产生的边料通过专用管道吸入粉碎装置内部,产生的粉尘均可以被吸到吸尘系统;具有粉碎废料的功能,废料经过粉碎后再进入吸尘收集箱内,废料粉碎后所需占用收集箱的空间大大减少,这样就提高收集箱的利用率2倍以上。

技术研发人员:周完成;曾吉林;谢斌;蔡正煌

受保护的技术使用者:东莞市科雷明斯智能科技有限公司;宁德新能源科技有限公司

技术研发日:2017.10.12

技术公布日:2018.05.22

网站地图